HomeEileen JonahListingsSoldServicesContact

31 Christopher 01844, Methuen

$469,900

For Sale

1347 SqFt

Size

3

Bedrooms

2

Bathrooms

73499087

Property Id

Property image 1
1 / 27

Description

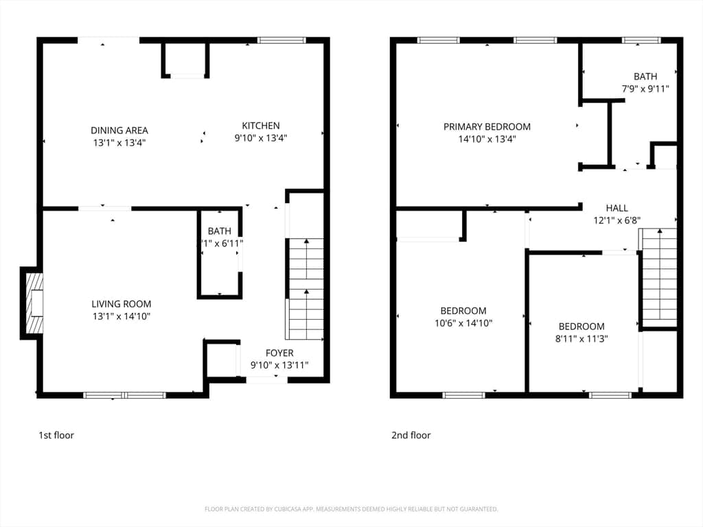
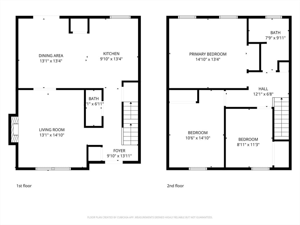
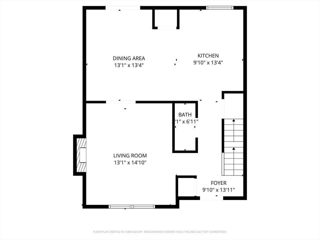
OFFERS DUE WEDNESDAY 8PM HIGHLY DESIRABLE 3 BEDROOM END UNIT TOWN HOME IN SOUGHT AFTER HERITAGE HEIGHTS DEVELOPMENT! Pride of ownership is evident thru out this spacious home featuring a nice open concept floor plan with a bright fully applianced & cabinet packed kitchen with center island, SS appliances and a dedicated coffee station, a large dining area with sliders to an oversized deck with private rear views, the bright living room boasts a brick fireplace and a convenient half bath is close by. The upper level has a nicely updated full bath, two large bedrooms with ample closets plus a 3rd bedroom perfect as an office. Lower level has lots of extra storage, washer & dryer and a one car garage. This complex has the lowest condo fees in town and amenities include tennis court, in ground pool, club house and extra guest parking close by. Location is tops with easy access to everything such as highways, shopping,medical, tax free NH and it's in the CGS School District. HURRY OVER!

Address

Address: 31 Christopher 01844 Methuen, MACountry: US
Property Type

Residential

Property Class

CondoProperty

Style

Condominium

Transaction Type

Sale

Year Built

1985

Total Rooms

6

Bedrooms

3

Bathrooms (Full)

2

Bathrooms (Half)

1

Square Feet

1,347 sqft

Heating

Forced Air, Natural Gas

Cooling

Central Air

Flooring

Tile, Vinyl, Carpet

Parking

3

Total Rooms

6

Bedrooms

3

Full Bathrooms

2

Half Bathrooms

1

Flooring

Tile, Vinyl, Carpet

Appliances

Range, Dishwasher, Disposal, Microwave, Refrigerator, Washer, Dryer

Heating

Forced Air, Natural Gas

Cooling

Central Air

Basement

Y

Fireplaces

1

List Price

$469,900

Original Price

$469,900

Price per Sqft

$349

Annual Property Taxes

$4,392.96

Tax Assessment Year

2026

Monthly Tax Estimate

$366

HOA Fee (Monthly)

$298

Total Monthly HOA

$298

MLS Pin© 2026 MLS Property Information Network, Inc. (MLSPIN). The property listing data and information set forth herein were provided to MLS Property Information Network, Inc. from third party sources, including sellers, lessors and public records, and were compiled by MLS Property Information Network, Inc. The property listing data and information are for the personal, non commercial use of consumers having a good faith interest in purchasing or leasing listed properties of the type displayed to them and may not be used for any purpose other than to identify prospective properties which such consumers may have a good faith interest in purchasing or leasing. MLS Property Information Network, Inc. and its subscribers disclaim any and all representations and warranties as to the accuracy of the property listing data and information set forth herein. This information was last updated on Wednesday, April 15, 2026. Some properties which appear for sale on this web site may subsequently have sold or may no longer be available. The listing broker's offer of compensation is made only to participants of the MLS where the listing is filed. Please contact Karen Schubert directly for additional information pertaining to the status and availability of properties displayed on this website.